Suit area plan of hotel general plan in auto cad file
Description
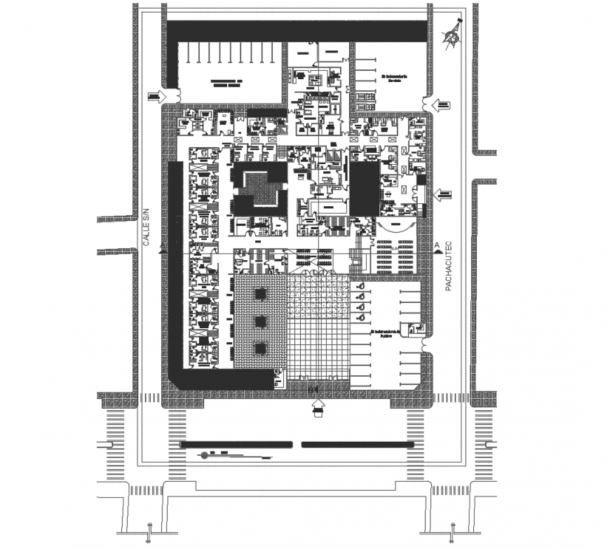
Suit area plan of hotel general plan in auto cad file plan include detail of area with necessary detail and view of wall entry way customer suit room with washing area and circulation way of hotel and important hotel view.
Uploaded by:
Eiz
Luna

